Обяви 0 За нас Контакти
Продава 2-СТАЕН
град Пловдив, Въстанически
74 900 €
146 491.67 лв.

(948 €, 1 854.13 лв./m2)
Цената е с включено ДДС
История на цената
Коригирана в 10:06 на 8 април, 2026 год.
Обявата е посетена 714 пъти.
Площ:
79 m2
Етаж:
1-ви от 4
Строителство:
Тухла, Ще бъде въведен в експлоатация 2028 г.

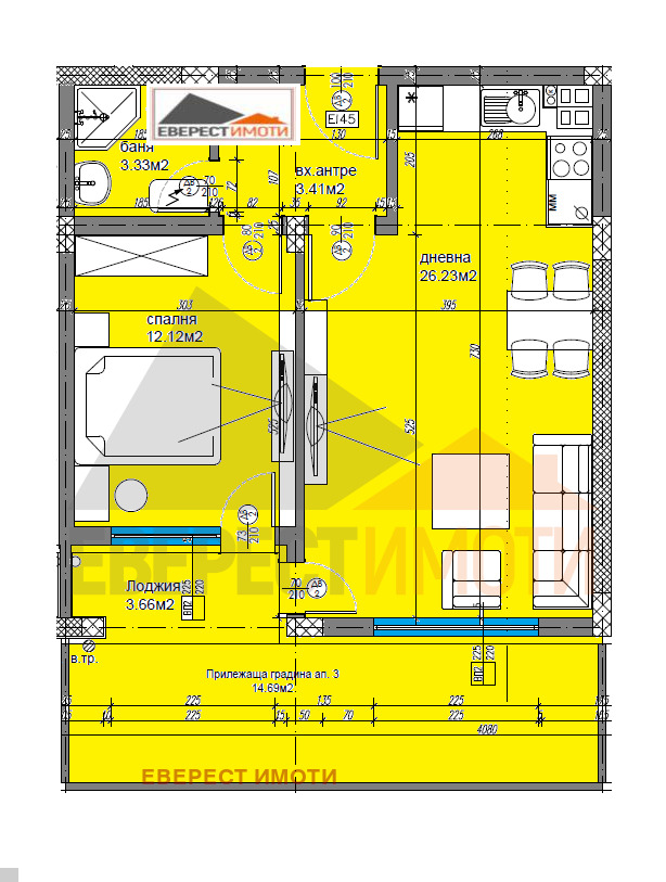
Описание на имота:


Оферта 4366: ДИРЕКТНО ОТ ИНВЕСТИТОР, БЕЗ КОМИСИОН!! ЛУКСОР 6 представлява две малки сгради в озеленен двор, обединяващ спокойствие, сигурност, функционалност, лукс и чудесно местоположение. Всичко това на едно място и на изгодни цени!!! Предлагаме Ви чудесен ДВУСТАЕН АПАРТАМЕНТ с възможност за закупуване на ПАРКОМЯСТО във вътрешен двор или ГАРАЖ. СГРАДИТЕ са с красива архитектура на прекрасно място, с визия прилягаща за квартала и скатни покриви с керемиди. Апартаментът се състои от слънчева дневна с трапезария и кухненски бокс 25 кв.м., една хубава спалня, баня с тоалетна, входно антре, склад и прилежаща партерна градина 14,40 кв.м. Строителството е прецизно с много високо качество на изпълнение и материали: керамична тухла, немска 5-камерна дограма от най-висок клас с мултифункционално стъкло, дизайнерско стълбище/виж галерия/ от естествен камък и облицовка на фасадата, 10 см. външна топлоизолация, парапети на стълбището и терасите от ковано желязо, блиндирани входни врати, безшумен асансьор, домофонна система с видеонаблюдение, декоративни елементи по фасадата, LED осветление по общи части и фасада и много други екстри за живущите. Жилищата се издават на шпакловка и замазка с изградена ел. инсталация с контакти и ключове, ВиК на тапа, входна блиндирана врата от най-висок клас. Мястото е тихо и много спокойно, като в близост има зеленчуков пазар, детска градина, училище, болница и автобусни спирки. ЧУДЕСЕН за инвестиция и живене поради близостта си до големи университети. Разсрочено плащане в рамките на строителството. Агенция ЕВЕРЕСТ ИМОТИ съдейства за закупуването чрез банков кредит от водещи банки на преференциални условия за клиентите си!!
Особености
Тухла
Асансьор
Лизинг
Контрол на достъпа
Саниран
За контакт:
0879510105
Брокер:
Янко Чаушев
0879510105
Офис: гр.Пловдив, ул.Неофит Рилски 1,ет.2
Още оферти от брокера: Продава | Дава под наем | Купува | Наема
Агенция:
ЕВЕРЕСТ ИМОТИ
0879310100; 0879510100; 0879510105
ЕВЕРЕСТ ИМОТИ logo
Медал за прослужено време
В imot.bg от 2018 г.
everestimoti.imot.bg
Адрес:
област Пловдив, гр. Пловдив, ул Неофит Рилски 1, ет.2
http://www.everestimoti.com
ИЗПРАТИ ЗАПИТВАНЕ
ИЗПРАТИ ЗАПИТВАНЕТО

Продава 2-СТАЕН
град Пловдив, Въстанически
Обява: 1b176044148267383

74 900 €
146 491.67 лв.
История на цената
(948 €, 1 854.13 лв./m2)

Цената е с включено ДДС
ЗАПАЗИ ОБЯВАТА

Местоположение: град Пловдив, Въстанически

Допълнителни данни за имотите в района и сравнение с други райони

Покажи

Период

и 4 месеца

* Средните цени са определени чрез медианна стойност